
OPTION D'ACHAT EN COURS – À proximité immédiate de la Gare des Guillemins et du Parc de Cointe, en façade arrière et situé au 7 étage, cet appartement lumineux à rénover offre une agréable vue dégagée. Il se compose d'une chambre, d'une terrasse, d'une cave, d'un garage. Superficie totale : +/-59 m² (d'après PEB).
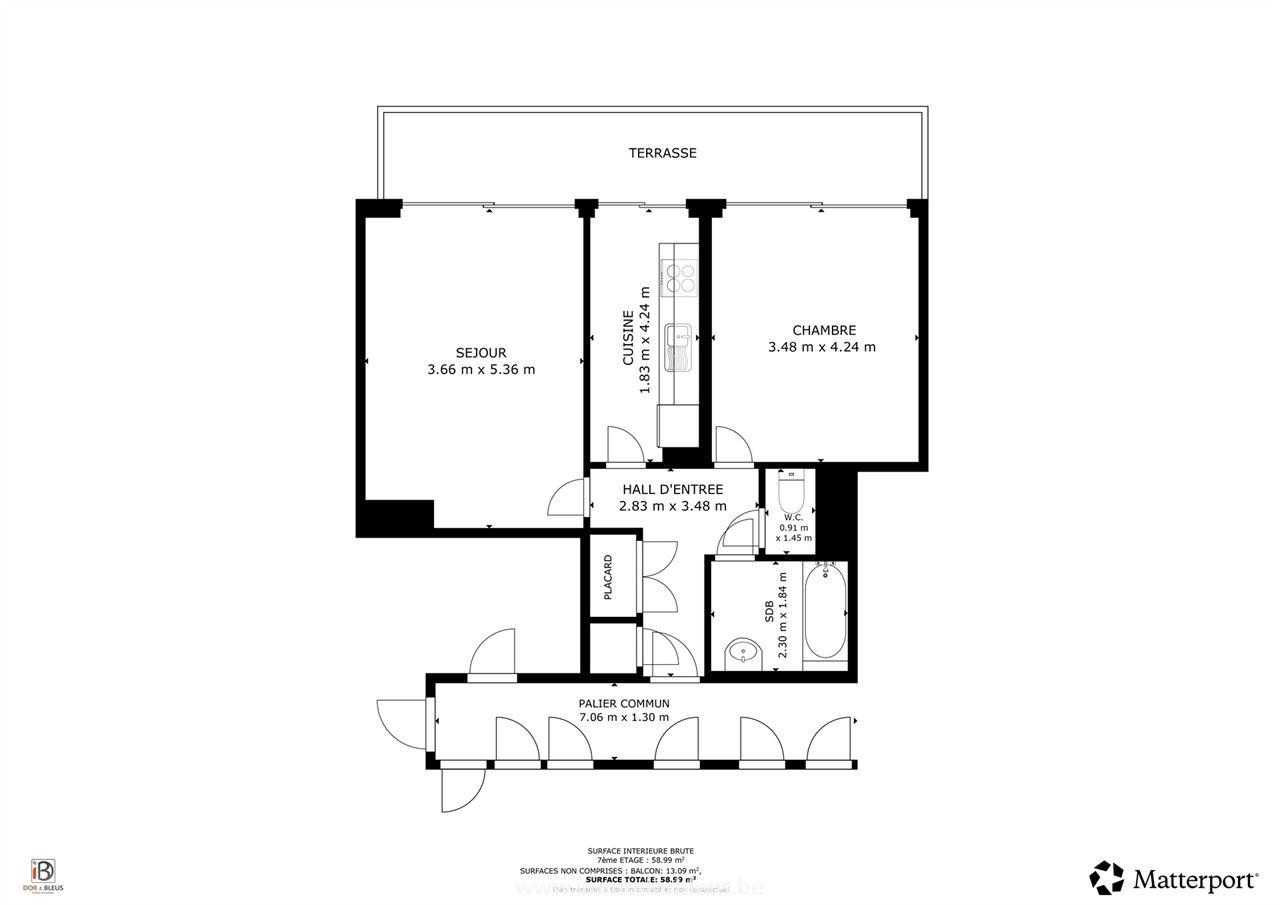
7ème étage : hall d'entrée avec vestiaire (+/-10 m²), lumineux séjour (+/-20 m²) avec accès à la terrasse, cuisine équipée (+/-8 m², avec taque vitrocéramique, hotte, four, frigo/congélateur, meubles évier et de rangement), 1 chambre à coucher (+/-15 m²), la cuisine et la chambre bénéficient également d'un accès à la terrasse, salle de bains (+/-4 m², avec baignoire/douche, meuble lavabo et emplacement machines), 1 w.c. indépendant .
Extérieur : terrasse en façade arrière (+/-13 m², orientation sud-ouest).
Sous-sol : 1 garage fermé privatif (+/-15,5 m²), 1 cave privative.
Equipements : ascenseur, châssis en aluminium avec simple vitrage, compteur individuel pour l'électricité (bihoraire communiquant), chauffage central au gaz collectif (calorimètres), production d'eau chaude couplée à la chaudière, parlophone.
Copropriété : quotités 473/51.042èmes (appartement, cave et garage) des parties communes – provision de charges : appel +/-212,62 €/mois (info indicative, comprenant notamment la gestion, entretien des communs, du parc, ascenseur, eau et chauffage) – Appel fonds de réserve : +/-807,06 € pour l'année 2026.
Divers : R.C. total actuel net de 872 € – P.E.B. en classe C.
Situation prisée – A proximité immédiate d'écoles, commerces, axes autoroutiers et transports en commun.
- Revenu cadastral (€): 872 €
- Sous régime TVA: non
- Nombre d'étages: 7
- Type de toit: Non communiqué
- Nombre de garages: 0
- Parking(s): 2
- Localisation: voir sur Google Map
- Orientation jardin: non précisée
- Orientation terrasse: Sud-ouest
- Nbre de toilette(s): 1
- Cuisine: Equipée
- Cave: oui
- PEB (E-SPEC): 11794kwh/m²/an
- Label PEB: C
- Eau: oui
- Gaz: oui
- Vitrage: Vitrage simple
- Châssis: Aluminium
- Conformité électricité:
- Autoroute (moins de 2km): oui
- Ecoles (moins de 2km): oui
- Bus/train (moins de 2km): oui