
VENDU – A proximité de toutes commodités, SPACIEUX IMMEUBLE A APPARTEMENTS composé de 4 APPARTEMENTS 2 CHAMBRES, BALCONS, JARDIN partagé et 4 GARAGES.
Superficie totale intérieure brute : +/-451 m².
Composition :
Rez-de-chaussée (Superficie totale +/-151 m²) :
Hall d'entrée commun avec cage d'escalier (+/-8 m²), couloir donnant accès à l'extérieur (+/-10 m²), 4 garages dont 2 accessibles par les communs et 2 par le jardin.
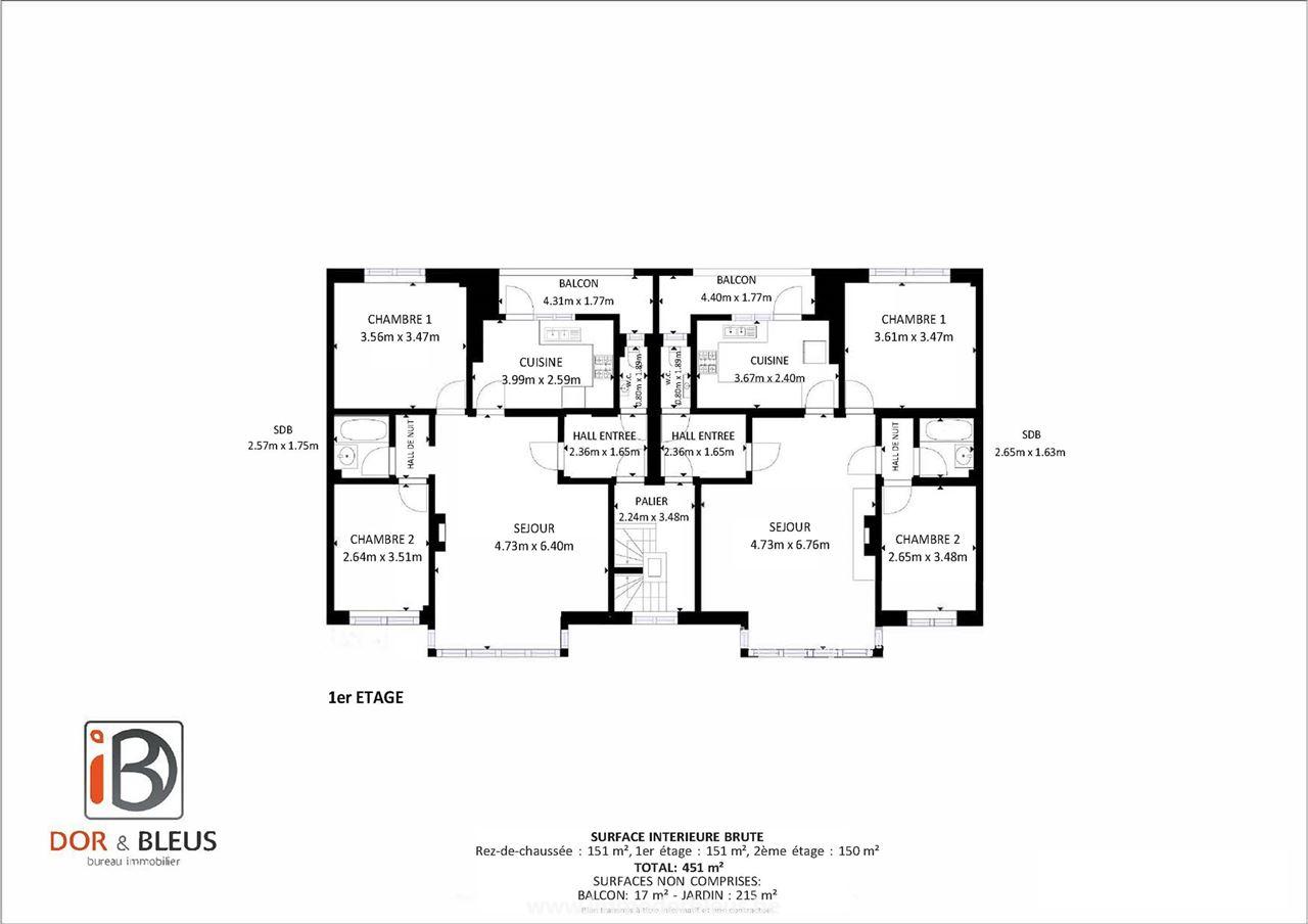
1er étage (Superficie totale +/-151 m²) :
2 appartements avec 2 chambres, cuisine équipée, salle de bains (baignoire/douche et lavabo), w.c. et balcons privatifs (+/-7,5 m²).
Actuellement loués : 759 €/mois chacun.
2ème étage (Superficie totale +/-150 m²) :
2 appartements avec 2 chambres, cuisine équipée, salle de bains (baignoire/douche et lavabo), w.c. et balcons privatifs (+/-7,5 m²).
Actuellement loués : 757 €/mois et 759 €/mois.
Extérieur : jardin individualisé (+/-215 m²).
Equipements : installations électriques en conformité pour 2 appartements (1er ét. et 2ème ét. gauche), châssis en pvc avec double vitrage, 5 compteurs électriques bihoraires, 4 compteurs d'eau, chauffage central au mazout (4 chaudières individuelles), production d'eau par boilers électriques (4x 150 l.), parlophones, portes coupe-feu, emplacements machines (garages), détecteurs incendie.
Divers : Revenu locatif actuel brut : 3.034 € par mois – P.E.B. en classe F (1er ét.) et en classe G (2ème ét.) – R.C. total actuel net de 3.306 €.
Beaux volumes et bonne situation, à proximité immédiate d'écoles, transports en commun, commerces et axe autoroutiers.
- Revenu cadastral (€): 3306 €
- Sous régime TVA: non
- Nombre d'étages: 2
- Type de toit: toit plat (Roofing)
- Nombre de garages: 4
- Parking(s): 0
- Localisation: voir sur Google Map
- Orientation jardin: Nord
- Orientation terrasse: Nord
- Nbre de toilette(s): 4
- Cuisine: Equipée
- Cave: non
- PEB (E-SPEC): 41320kwh/m²/an
- Label PEB: F
- Eau: oui
- Gaz: non
- Vitrage: Double vitrage
- Châssis: PVC
- Conformité électricité:
- Autoroute (moins de 2km): non
- Ecoles (moins de 2km): oui
- Bus/train (moins de 2km): oui