
OPTION D'ACHAT EN COURS – QUEUE-DU-BOIS, dans un quartier résidentiel, cette lumineuse maison d'habitation en très bon état d'entretien vous offre 3 chambres, une terrasse et un jardin bien orientés ainsi qu'un garage. Superficie habitable : +/-145 m² (d'après PEB).
Composition :
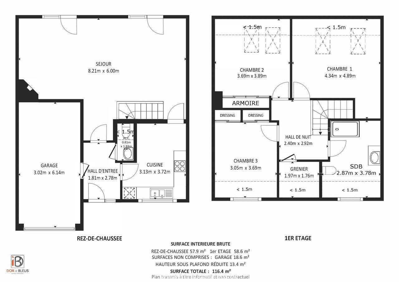
Rez-de-chaussée carrelé : hall d'entrée (+/-5 m²) avec w.c. (+/-1,5 m² avec lave-mains), spacieux séjour avec cassette à bois (+/-49 m²) avec accès à la terrasse et au jardin, cuisine équipée (+/-12 m², avec four, taque vitrocéramique, frigo, lave-vaisselle, meuble évier et de rangement), garage (+/-19 m² avec emplacement machines).
1er étage : hall de nuit (+/-7 m²), 3 chambres à coucher mansardées (+/-21, 14 et 11 m²) dont 2 avec placards intégrés, salle de bains entièrement carrelée (+/-11 m², avec douche, meuble lavabo et wc), 1 grenier de rangement (+/-3,5 m²).
Extérieur : belle terrasse et jardin orientés au sud avec vue dégagée et abri de jardin, emplacement parking extérieur.
Equipements : 18 panneaux photovoltaïques 4,3 kWc (2012), compteur électrique bihoraire communiquant, chauffage central au gaz (chaudière WEISHAUPT), châssis en PVC avec double vitrage (2016 + vélux 2024) + volets (en partie électriques), alarme, porte de garage sectionnelle motorisée, bannes solaires motorisées sur la terrasse, borne de recharge pour véhicule électrique (2022).
Divers : P.E.B. en classe C – Parcelle cadastrale : 305 m² – Revenu cadastral actuel net : 867 €.
Belle situation à proximité de toutes les commodités (écoles, crèches, centre de Fléron 3.5 km).
- Revenu cadastral (€): 867 €
- Sous régime TVA: non
- Nombre d'étages: 1
- Type de toit: en pente (Tuiles)
- Nombre de garages: 1
- Parking(s): 2
- Localisation: voir sur Google Map
- Orientation jardin: Sud
- Orientation terrasse: Sud
- Nbre de toilette(s): 2
- Cuisine: Equipée
- Cave: non
- PEB (E-SPEC): 32102kwh/m²/an
- Label PEB: C
- Eau: oui
- Gaz: oui
- Vitrage: Double vitrage
- Châssis: PVC
- Conformité électricité:
- Autoroute (moins de 2km): oui
- Ecoles (moins de 2km): oui
- Bus/train (moins de 2km): oui