
.cs95E872D0{text-align:left;text-indent:0pt;margin:0pt 0pt 0pt 0pt}.csDC4A80{color:#000000;background-color:transparent;font-family:Calibri;font-size:11pt;font-weight:bold;font-style:normal;}.cs1B16EEB5{color:#000000;background-color:transparent;font-family:Calibri;font-size:11pt;font-weight:normal;font-style:normal;}.cs32E60577{color:#000000;background-color:transparent;font-family:Calibri;font-size:11pt;font-weight:normal;font-style:normal;text-decoration: underline;}
Située dans le quartier recherché de COINTE, cette lumineuse VILLA 4 façades de 2021 séduit par ses volumes généreux. Elle comprend notamment un espace de vie confortable, 3 chambres, une salle de bains, une salle de douche et bénéficie d'une terrasse ainsi que d'un agréable jardin.
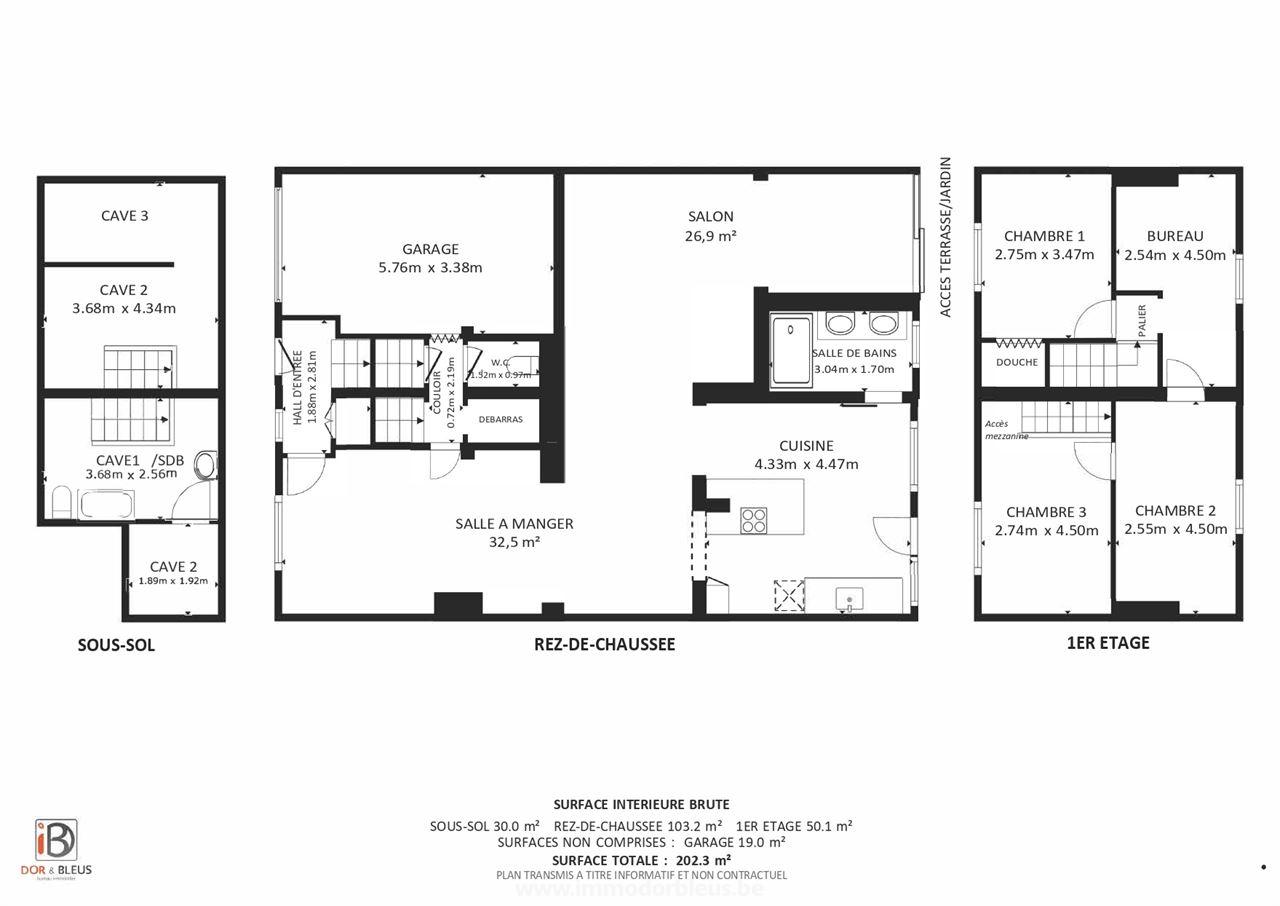
Superficie totale : +/-204 m².
Composition :
Sous-sol : spacieuse cave avec espace buanderie et chaufferie (+/-72 m²).
Rez-de-chaussée : hall d'entrée (+/-3m²) avec w.c. (+/-1 m²) et débarras (+/-1 m²), spacieux espace de vie (+/-50 m²) ouvert sur la cuisine équipée (avec frigo, congélateur, taque de cuisson avec hotte intégrée, four, lave-vaisselle, meubles évier et de rangement) et son salon (+/-26 m²) avec accès à la terrasse et au jardin.
1er étage : hall de nuit (+/-9 m²), 3 chambre à coucher (+/-16, 12 et 9,5 m²), 1 salle de bains (+/-6 m², avec baignoire, douche, meuble double lavabo et w.c.) et 1 salle de douche (+/-2,5 m², avec douche et lavabo) et 1 w.c. (+/-1 m²).
Extérieur : agréable terrasse (+/-60 m²) et jardin orientés à l'est.
Equipements : sols carrelés à l'exception des chambres (parquet), chauffage central au gaz (chaudière à condensation Vaillant), production d'eau chaude couplée à la chaudière, installation électrique en conformité (compteur bihoraire), châssis en aluminium avec double vitrage, toiture plateforme.
Divers : P.E.B. en classe B – Parcelle cadastrale : 135 m² – R.C. actuel net total de 1.240 € – Actuellement loué : 1 150 €/mois.
Beaux volumes et excellente situation, à moins de 2 km de la Gare des Guillemins. Transports en commun, écoles et commerces à proximité immédiate.
- Revenu cadastral (€): 1240 €
- Sous régime TVA: non
- Nombre d'étages: 1
- Type de toit: toit plat
- Nombre de garages: 0
- Parking(s): 0
- Localisation: voir sur Google Map
- Orientation jardin: Est
- Orientation terrasse: Est
- Nbre de toilette(s): 2
- Cuisine: Equipée
- Cave: oui
- PEB (E-SPEC): kwh/m²/an
- Label PEB: B
- Eau: oui
- Gaz: oui
- Vitrage: Double vitrage
- Châssis: Aluminium
- Conformité électricité: Oui, conforme RGIE
- Autoroute (moins de 2km): oui
- Ecoles (moins de 2km): oui
- Bus/train (moins de 2km): oui