
.cs95E872D0{text-align:left;text-indent:0pt;margin:0pt 0pt 0pt 0pt}.csDC4A80{color:#000000;background-color:transparent;font-family:Calibri;font-size:11pt;font-weight:bold;font-style:normal;}.cs1B16EEB5{color:#000000;background-color:transparent;font-family:Calibri;font-size:11pt;font-weight:normal;font-style:normal;}.cs32E60577{color:#000000;background-color:transparent;font-family:Calibri;font-size:11pt;font-weight:normal;font-style:normal;text-decoration: underline;}
OPTION D'ACHAT EN COURS – Située au cœur du quartier historique d'OUTREMEUSE, agréable maison d'habitation mitoyenne à rafraîchir avec 2 chambres et cour. Superficie habitable : +/-84 m² (d'après PEB).
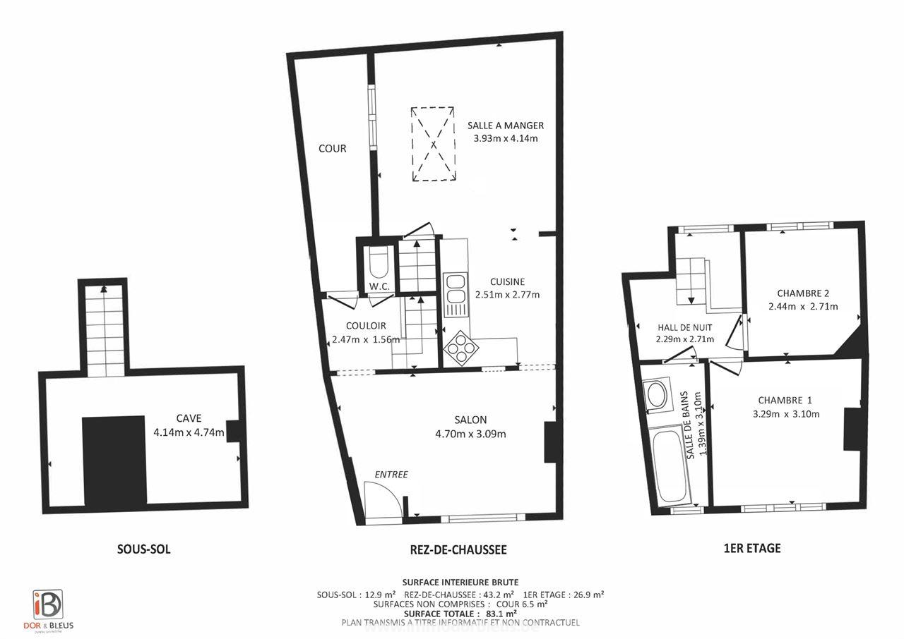
Composition :
Sous-sol : cave avec chaufferie (+/-20 m²).
Rez-de-chaussée : salon (+/-15 m²) ouvert sur la cuisine semi-équipée (+/-7 m², avec taque au gaz, hotte, meubles évier/de rangement et emplacement machines) et lumineuse salle à manger (+/-16 m²), w.c. (+/-1 m²) et accès à la cour/terrasse.
1er étage : hall de nuit (+/-6 m²), 2 chambres à coucher (+/-10 et 7 m²), salle de bains (+/-4 m², avec baignoire/douche et meuble lavabo).
Extérieur : cour/terrasse (+/-6,5 m²).
Equipements : chauffage central au gaz (chaudière murale à condensation de marque Vaillant – 2022), production d'eau chaude couplée à la chaudière, châssis en bois avec double vitrage + volets manuels en façade avant, compteur électrique simple horaire.
Divers : parcelle cadastrale de 56 m² – R.C. actuel net de 297 € – P.E.B. en classe F.
Situation centrale, à proximité de toutes commodités. Idéale comme 1er achat.
- Revenu cadastral (€): 297 €
- Sous régime TVA: non
- Nombre d'étages: 0
- Type de toit: toit plat (Roofing)
- Nombre de garages: 0
- Parking(s): 0
- Localisation: voir sur Google Map
- Orientation jardin: non précisée
- Orientation terrasse: non précisée
- Nbre de toilette(s): 1
- Cuisine: Semi-équipée
- Cave: oui
- PEB (E-SPEC): 40433kwh/m²/an
- Label PEB: F
- Eau: non
- Gaz: non
- Vitrage: Double vitrage
- Châssis: PVC
- Conformité électricité:
- Autoroute (moins de 2km): oui
- Ecoles (moins de 2km): oui
- Bus/train (moins de 2km): oui