
.cs95E872D0{text-align:left;text-indent:0pt;margin:0pt 0pt 0pt 0pt}.cs5BEC2C28{color:#000000;background-color:transparent;font-family:Calibri;font-size:12pt;font-weight:bold;font-style:normal;}.cs1B16EEB5{color:#000000;background-color:transparent;font-family:Calibri;font-size:11pt;font-weight:normal;font-style:normal;}.cs32E60577{color:#000000;background-color:transparent;font-family:Calibri;font-size:11pt;font-weight:normal;font-style:normal;text-decoration: underline;}.csDC4A80{color:#000000;background-color:transparent;font-family:Calibri;font-size:11pt;font-weight:bold;font-style:normal;}
Située sur les hauteurs de Seraing, à deux pas de l'Athénée de l'Air Pur, lumineuse maison d'habitation 3 façades à rénover avec 2 chambres, jardin bien orienté et emplacement parking. Superficie habitable : +/-87 m² (d'après PEB).
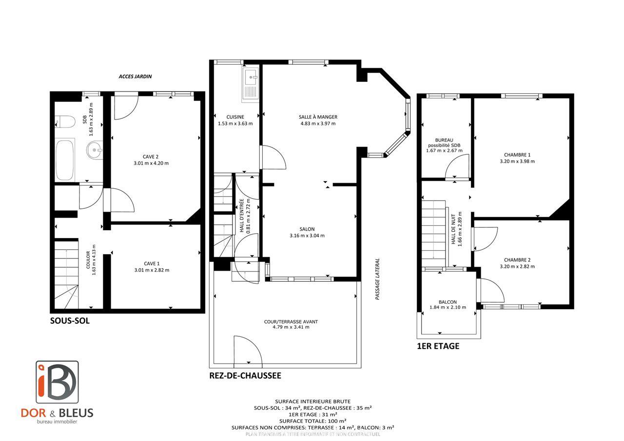
Composition :
Sous-sol : 2 caves (+/- 13 et 8,5 m²), salle de bains (+/-5 m² avec baignoire, lavabo et w.c.), accès au jardin.
Rez-de-chaussée : hall d'entrée (+/-2 m²), salon (+/-19 m²), salle à manger (+/-10 m²), cuisine à rénover (+/-6 m²).
1er étage : hall de nuit (+/-5 m²), 2 chambres à coucher (+/-13 et 9 m²) dont une avec balcon en façade avant (+/-3 m²), bureau (+/-4,5 m²) possibilité salle de bains.
Extérieur : passage latéral possibilité emplacement parking extérieur, cour/terrasse en façade avant (+/-15 m²), jardin (+/-120 m²) orienté à l'ouest.
Equipements : chauffage central au gaz (chaudière à condensation Bulex), châssis en pvc avec double vitrage, production d'eau chaude par boiler électrique Van Marcke (100 l.).
Divers : P.E.B. en classe G – Parcelle cadastrale : +/-220 m² (superficie à confirmer, formalités de division de parcelle en cours) – Le revenu cadastral sera déterminé ultérieurement (cfr. formalités division).
Situation locative : actuellement loué 420 €/mois.
Très bonne situation à proximité de toutes les commodités (écoles, commerces, transports en commun).
- Revenu cadastral (€): 0 €
- Sous régime TVA: non
- Nombre d'étages: 1
- Type de toit: en pente (Tuiles)
- Nombre de garages: 0
- Parking(s): 2
- Localisation: voir sur Google Map
- Orientation jardin: Ouest
- Orientation terrasse: Ouest
- Nbre de toilette(s): 1
- Cuisine: Non-équipée
- Cave: oui
- PEB (E-SPEC): 51222kwh/m²/an
- Label PEB: G
- Eau: oui
- Gaz: oui
- Vitrage: Double vitrage
- Châssis: PVC
- Conformité électricité:
- Autoroute (moins de 2km): oui
- Ecoles (moins de 2km): oui
- Bus/train (moins de 2km): oui